В западной части Ленсоветовского у водохранилища построят школу - «Свежие новости строительства» » Всё обо всём.
Всё обо всём. Свежие новости строительства » Строим Город » В западной части Ленсоветовского у водохранилища построят школу - «Свежие новости строительства»
В западной части Ленсоветовского у водохранилища построят школу - «Свежие новости строительства»
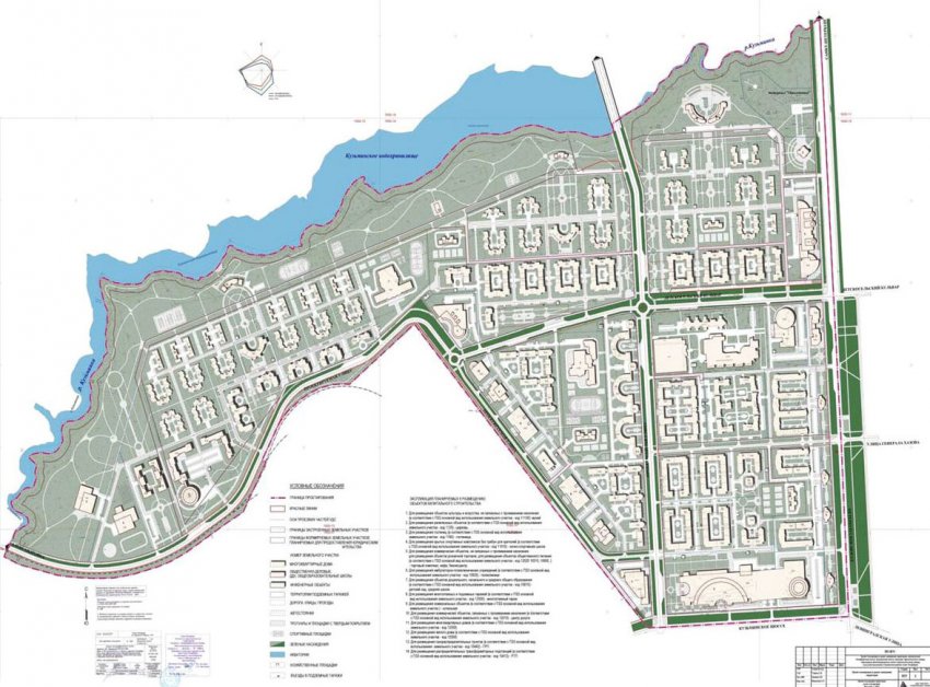
В западной части Ленсоветовского построят школу. Она расположится на берегу Среднего Кузьминского водохранилища. Земельный участок площадью 2,2 гектара расположен северо-западнее школы № 460 в Ленсоветовском, 19. Это пустырь и некоторое количество деревьев, в том числе лесополоса изогнутой формы.

В западной части Ленсоветовского построят школу. Она расположится на берегу Среднего Кузьминского водохранилища.


Земельный участок площадью 2,2 гектара расположен северо-западнее школы № 460 в Ленсоветовском, 19. Это пустырь и некоторое количество деревьев, в том числе лесополоса изогнутой формы.


Как стало известно «Канонеру», тут хотят построить «объединенный объект образования», который включит в себя школу на 965 мест и детский сад. Проект по заказу ООО «Возрождение» разработало ООО «Дальпитерстрой», связанное с ООО «Строительная компания „Дальпитерстрой“» (до недавних пор основной девелопер Ленсоветовского).


«Цветовая гамма школы подобрана в спокойных, природных тонах, на фоне основного белого цвета выделяются оконные проемы с обрамлениями», — пояснили в КГА. Здание будет четырехэтажным.




{full-story limit="10000"}
Цитирование статьи, картинки - фото скриншот - Rambler News Service.
Иллюстрация к статье - Яндекс. Картинки.
Есть вопросы. Напишите нам.
Общие правила  поведения на сайте.
Ctrl
Enter
Заметили ошЫбку?
Выделите текст и нажмите Ctrl+Enter
Мы в
Комментарии
Минимальная длина комментария - 50 знаков. комментарии модерируются
Комментариев еще нет. Вы можете стать первым!

Смотрите также
интересные публикации