Представлена новая версия застройки у Кузьминского водохранилища в Пушкине - «Свежие новости строительства»
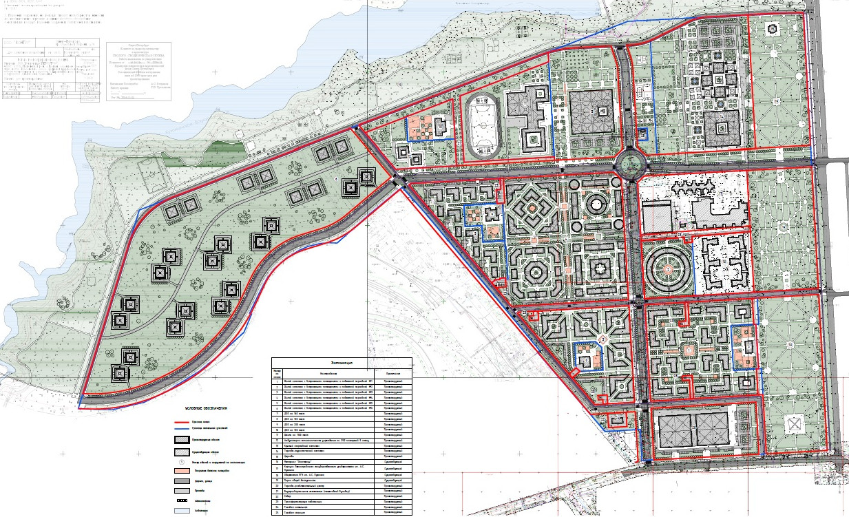
Сегодня была представлена новая версия застройки территории на южном берегу Кузьминского водохранилища. Там на более чем 100 гектарах хотят выстроить три жилых квартала и разбить крупные парки.
109 гектаров земли Аграрного университета в 2011 году купило на торгах ЗАО «Корпорация „Петрострой“», входящее в группу компаний «Колвэй». Территория ограничена Петербургским шоссе, Кузьминским шоссе, промзоной и водохранилищем на реке Кузьминке.
Первый проект планировки территории был представлен в 2012 году. Замдиректора группы «Колвэй» Александр Перфильев тогда говорил «Канонеру», что, помимо жилья, здесь появятся две школы, четыре детсада, две поликлиники, а вдоль Кузьминского водохранилища разобьют парк площадью 30 гектаров. Изюминкой микрорайона, по словам господина Перфильева, должен был стать конный клуб у Александровского кладбища.
Сегодня на градсовете представили новую версию проекта планировки. Ее по заказу ООО «Медиаресурс», входящего в «Колвэй», сделало ООО «Архитектурное бюро „Студия 44“» Никиты Явейна. Обнародованную работу отличает немного измененная схема улично-дорожной сети и более плотное расположение жилых домов.
Ранее топонимическая комиссия согласовала названиях трех улиц для микрорайона — Павильонная, Нееловская и Стасовская. Теперь предстоит добавить к ним еще как минимум два наименования.
С юго-запада к новому микрорайону будет примыкать еще один жилой квартал — на месте промзоны. Его концепцию по заказу ООО «Майлс энд ярдс девелопмент» сделало ООО «Интерколумниум».
И будьте в курсе первыми!


