На Заповедной улице построят церковь и гостиницу за ней - «Свежие новости строительства» » Всё обо всём.
Всё обо всём. Свежие новости строительства » Строим Город » На Заповедной улице построят церковь и гостиницу за ней - «Свежие новости строительства»
На Заповедной улице построят церковь и гостиницу за ней - «Свежие новости строительства»
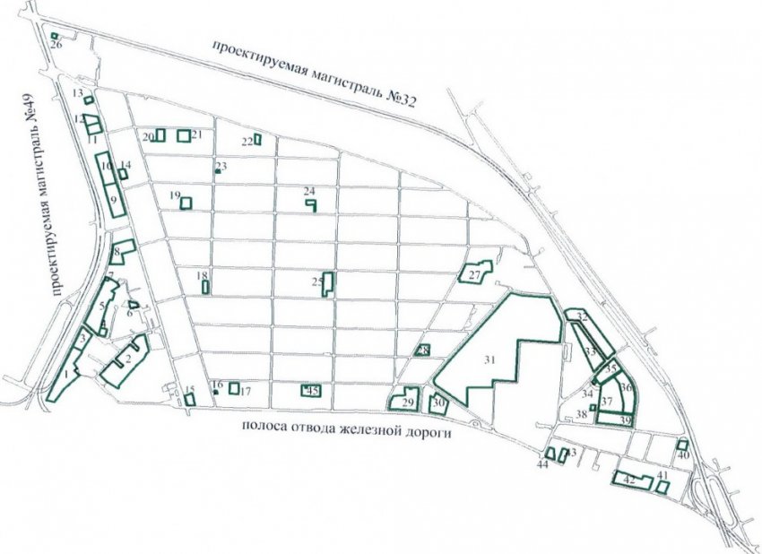
Смольный утвердил проект планировки территории, на которую попадает садоводство «Госрезерв» и Орловский карьер. Из крупных объектов — новая площадка Центра Алмазова, церковь и гостиница на Заповедной улице. Территория ограничена Заповедной улицей, Новоорловским заказником, Шуваловским проспектом и

Смольный утвердил проект планировки территории, на которую попадает садоводство «Госрезерв» и Орловский карьер. Из крупных объектов — новая площадка Центра Алмазова, церковь и гостиница на Заповедной улице.


Территория ограничена Заповедной улицей, Новоорловским заказником, Шуваловским проспектом и перспективной дорогой почти в створе улицы Маршала Новикова (ее, скорее всего, включат в состав Заповедной). Проект планировки земель разрабатывался Научным центром генплана Санкт-Петербурга по заказу КГА.


Предполагается, что в квартале разместится несколько новых объектов. Так, со стороны Заповедной улицы строится комплекс зданий Медицинского исследовательского центра имени Алмазова. На той же Заповедной, но северо-восточнее, отведен участок под религиозный объект, а за ним — под гостиницу.


Садоводства «Госрезерв» и «Светлана» остаются.


Сегодня Смольный опубликовал утвержденный проект планировки.




{full-story limit="10000"}
Цитирование статьи, картинки - фото скриншот - Rambler News Service.
Иллюстрация к статье - Яндекс. Картинки.
Есть вопросы. Напишите нам.
Общие правила  поведения на сайте.
Ctrl
Enter
Заметили ошЫбку?
Выделите текст и нажмите Ctrl+Enter
Мы в
Комментарии
Минимальная длина комментария - 50 знаков. комментарии модерируются
Комментариев еще нет. Вы можете стать первым!

Смотрите также
интересные публикации