Смольный утвердил проект планировки Ольгина и северной Лахты - «Свежие новости строительства» » Всё обо всём.
Всё обо всём. Свежие новости строительства » Продукты и Услуги » Смольный утвердил проект планировки Ольгина и северной Лахты - «Свежие новости строительства»
Смольный утвердил проект планировки Ольгина и северной Лахты - «Свежие новости строительства»
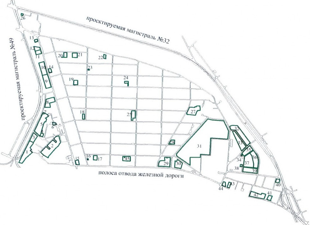
Смольный утвердил проект планировки Ольгина и северной части Лахты. Там появится несколько новых улиц, две магистрали, а еще множество жилых домов, спорткомплексы, поликлиника и церковь. Проект планировки разрабатывался Научным центром генплана Санкт-Петербурга по заказу КГА. Сегодня Смольный

Смольный утвердил проект планировки Ольгина и северной части Лахты. Там появится несколько новых улиц, две магистрали, а еще множество жилых домов, спорткомплексы, поликлиника и церковь.


Проект планировки разрабатывался Научным центром генплана Санкт-Петербурга по заказу КГА. Сегодня Смольный опубликовал документ.


Утверждены трассы двух крупных магистралей — № 32 (Новая улица, она же продолжение Мебельной улицы) и 49 (Суздальское шоссе). Граничная улица будет продлена вдоль Лахтинского кладбища до створа улицы Красных Партизан. Она будет пересекаться также с иными новыми проездами.


Самый крупный участок, который сформирован для нового строительства, расположится между жилой застройкой Ольгина и Лахтинским кладбищем — там расположится Лахтинский лаун-теннис-клуб площадью 8 гектаров. Новые объекты появятся вдоль пробиваемого сюда Суздальского шоссе, западнее Коннолахтинского проспекта: спортивный комплекс, ветеринарная поликлиника, гостиница, религиозный объект, два неопределенных «коммерческих объекта» и жилые дома.


Из мелких объектов — поликлиника на Колодезной улице, 16, ресторан на Вокзальной улице, 1, детский сад за домом 25 по Колхозной улице, а также множество жилых домов.




{full-story limit="10000"}
Цитирование статьи, картинки - фото скриншот - Rambler News Service.
Иллюстрация к статье - Яндекс. Картинки.
Есть вопросы. Напишите нам.
Общие правила  поведения на сайте.
Ctrl
Enter
Заметили ошЫбку?
Выделите текст и нажмите Ctrl+Enter
Мы в
Комментарии
Минимальная длина комментария - 50 знаков. комментарии модерируются
Комментариев еще нет. Вы можете стать первым!

Смотрите также
интересные публикации