Осенью вокруг пруда Бауш в Петергофе построят первые коттеджи - «Свежие новости строительства»
Осенью сдадут первые коттеджи ЖК «Сад времени», которые строятся в Старом Петергофе вокруг пруда Бауш. Однако из-за затянувшейся подготовки бумаг они получат неудобные адреса.
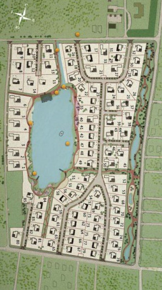
Коттеджный комплекс «Сад времени» будет построен в квартале между улицами Халтурина, Баушевской (бывшей Ульяновской), Беловой и Бобыльской дорогой. Согласно генеральному плану, участки домов будут выходить к побережью пруда Бауш. Между водоемом и Бобыльской дорогой пробьют еще один проезд, который соединит улицы Беловой и Халтурина и внешне напомнит логотип Yota.
Застройщик ЗАО «Строительный трест» объявил о старте продаж в феврале. Всего «Сад времени» включает 85 кирпичных коттеджей. Проект разработала эстонская мастерская APS Projekt. В компании-застройщике «Карповке» сообщили, что осенью будут сданы первые дома. Некоторые из них расположатся на берегу Бауша и канала, который соединяет пруд с улицей Беловой. Еще два канала (от пруда к Бобыльской дороге и к улице Халтурина), судя по проекту, будут засыпаны.
Здания могут получить неудобные адреса, считает член топонимической комиссии Андрей Рыжков, поскольку для данного квартала не утвержден проект планировки, а без него присвоить названия новым улицам невозможно.
По словам собеседника «Карповки», процесс утверждения наименований в Петербурге небыстрый и может занимать до года с момента обращения по поводу присвоения названий. Причем таких обращений по улицам вокруг Бауша до сих пор в комиссию не поступало, говорит господин Рыжков. И даже если в ближайшее время проект планировки будет принят, то к осени улицы в любом случае останутся безымянными, а дома получат адреса по окрестным проездам с использованием многочисленных корпусов.
В «Строительном тресте» сказали, что разработка проекта планировки продолжается, ею занимается ООО «Союзгенстрой». «Названия новым улицам, согласно существующим в городе правилам, будут даны топонимической комиссией Санкт-Петербурга», — добавили там.













И будьте в курсе первыми!