На Лиговском напротив хладокомбината № 1 построят 14-этажный бизнес-центр - «Свежие новости строительства»
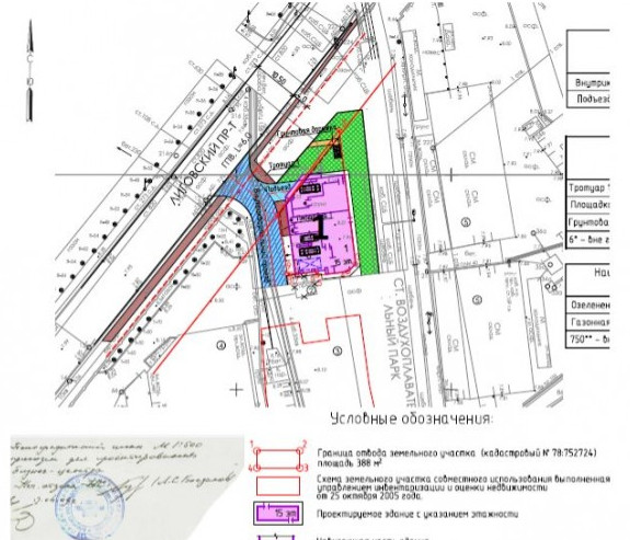
14-этажный бизнес-центр собираются построить на Лиговском проспекте в районе дома 254. Это будет одно из самых высоких зданий на проспекте.
Застройщиком выступает ООО «Флэкс». Небольшой участок, выходящий на красную линию Лиговского проспекта между подъездным железнодорожным путем и домом 254, достался компании с торгов в 2006 году. Ранее там был пустырь, который использовали как автостоянку. Сейчас участок предназначен для размещения объектов торговли.
Тем не менее в мае 2012-го было выдано разрешение на строительство бизнес-центра. При этом оформлялись порубочные билеты. Активная стройка началась в этом году. Генеральный подрядчик — ООО «Баурама». Как сообщили в ООО «Баурама» (генподрядчик), планируется возвести 14-этажное точечное здание с подвальным и техническим этажами.
Архитектура его отличается экономичностью. Высота здания составит 50 метров. Ограничение по фоновой высоте для этой зоны установлено в 54 метра. Дом будет иметь монолитные железобетонные несущие стены и колонны по периметру. Это позволит получить свободные планировки офисов.
Сейчас, по словам наблюдателей, на площадке идут работы нулевого цикла. Завершить строительство застройщик собирается в третьем квартале 2015-го.


И будьте в курсе первыми!