На окраине Павловска квартал нарезали для возведения 30 коттеджей - «Свежие новости строительства» » Всё обо всём.
Всё обо всём. Свежие новости строительства » Новости рынка недвижимости » На окраине Павловска квартал нарезали для возведения 30 коттеджей - «Свежие новости строительства»
На окраине Павловска квартал нарезали для возведения 30 коттеджей - «Свежие новости строительства»
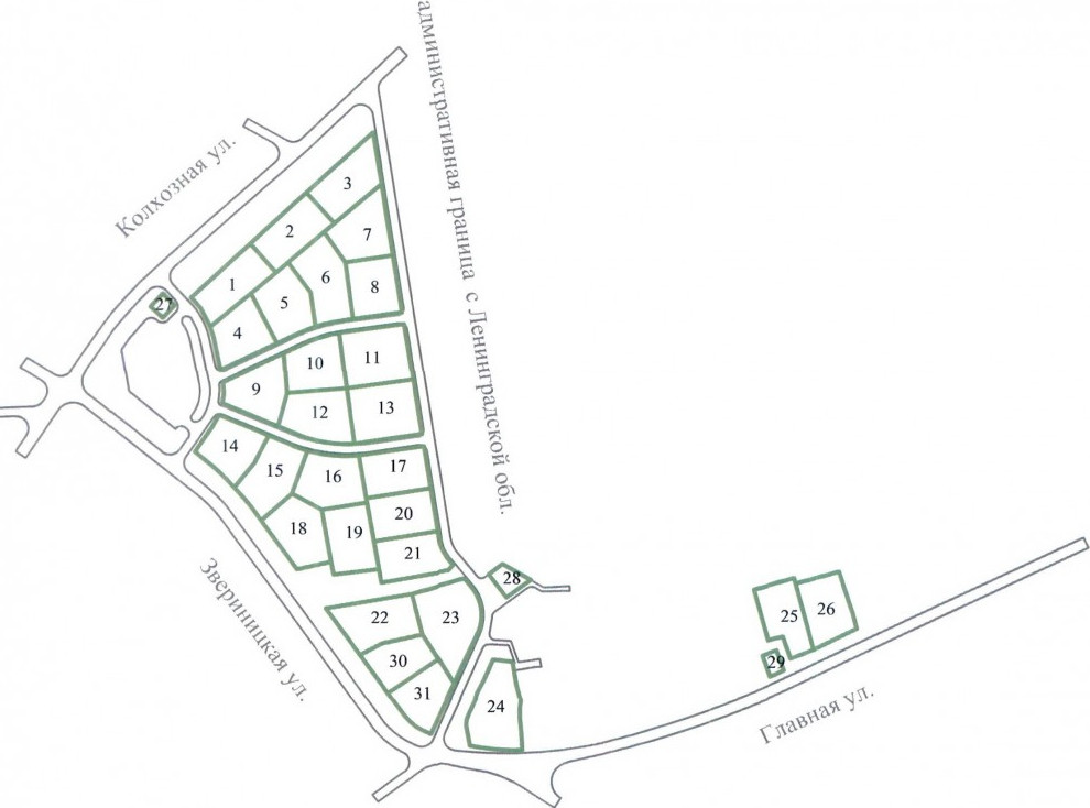
Квартал из 30 коттеджей появится на окраине Павловска — в конце Звериницкой улицы. На днях был утвержден проект планировки территории, предполагающий прокладку четырех новых дорог. Квартал ограничен Колхозной, Звериницкой, Главной улицами и границей с Ленинградской областью. Сейчас там расположено

Квартал из 30 коттеджей появится на окраине Павловска — в конце Звериницкой улицы. На днях был утвержден проект планировки территории, предполагающий прокладку четырех новых дорог.


Квартал ограничен Колхозной, Звериницкой, Главной улицами и границей с Ленинградской областью. Сейчас там расположено чуть больше десяти частных жилых домов, но в основном территория не занята застройкой.


Теперь там хотят возвести еще 30 коттеджей, а также два магазина на Главной улице. Вчера вечером Смольный опубликовал проект планировки квартала, который и нарезает землю на участки и улицы. Дороги будет четыре: одна вдоль границы, еще одна продлит безымянный переулок от улицы Дзержинского, а два проезда свяжут их.


ППТ разрабатывался по заказу ООО «Квартал 17 А». Эта компания застраивает квартал в поселке Тельмана Тосненского района Ленобласти, примыкающий к городу Колпино, а также возводит дом в Любани. Совладелец фирмы Александр Флегантов фигурировал как застройщик дома на улице Глинки, 21, в Пушкине.




{full-story limit="10000"}
Цитирование статьи, картинки - фото скриншот - Rambler News Service.
Иллюстрация к статье - Яндекс. Картинки.
Есть вопросы. Напишите нам.
Общие правила  поведения на сайте.
Ctrl
Enter
Заметили ошЫбку?
Выделите текст и нажмите Ctrl+Enter
Мы в
Комментарии
Минимальная длина комментария - 50 знаков. комментарии модерируются
Комментариев еще нет. Вы можете стать первым!

Смотрите также
интересные публикации