Пустырь на улице Свободы в Красном Селе застроят спорткомплексом - «Свежие новости строительства»
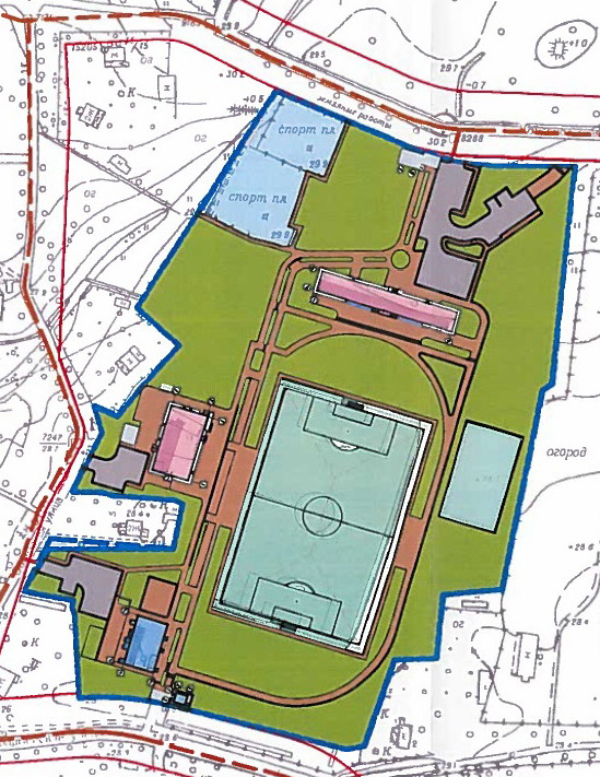
Спортивный комплекс планируется построить на улице Свободы в Красном Селе. Он разместится на пустыре и на месте яблоневого сада возле проспекта Ленина. Земельный участок площадью 0,6 гектара расположен между домами 17 по улице Свободы и 85 по проспекту Ленина. Сейчас он состоит из пустыря и
Спортивный комплекс планируется построить на улице Свободы в Красном Селе. Он разместится на пустыре и на месте яблоневого сада возле проспекта Ленина.
Земельный участок площадью 0,6 гектара расположен между домами 17 по улице Свободы и 85 по проспекту Ленина. Сейчас он состоит из пустыря и яблоневого сада.
Инвестором должно выступить ООО «Стрелец».
Подпишитесь
И будьте в курсе первыми!
И будьте в курсе первыми!
Минимальная длина комментария - 50 знаков. комментарии модерируются
Смотрите также
интересные публикации
