Сквер на Звездной улице застроят административным зданием - «Свежие новости строительства» » Всё обо всём.
Всё обо всём. Свежие новости строительства » Новости рынка недвижимости » Сквер на Звездной улице застроят административным зданием - «Свежие новости строительства»
Сквер на Звездной улице застроят административным зданием - «Свежие новости строительства»
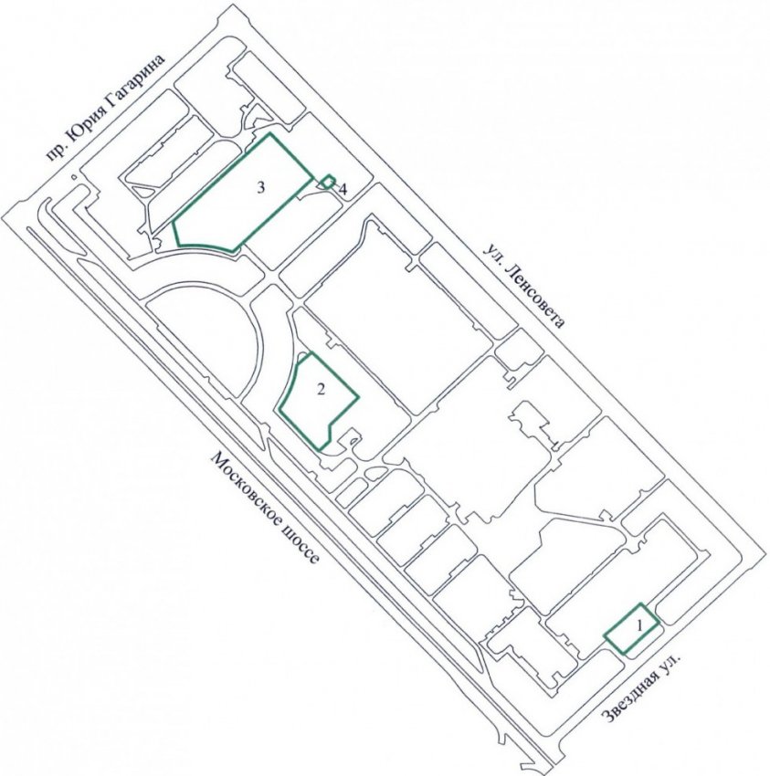
Административное здание будет построено на Звездной улице. Для этого частично будет вырублен сквер перед домом 4. Земельный участок расположен между домами 38 по Московскому шоссе и 95 по улице Ленсовета, на красной линии Звездной улицы. Прежде там был сквер. Проектом планировки, утвержденным в

Административное здание будет построено на Звездной улице. Для этого частично будет вырублен сквер перед домом 4.


Земельный участок расположен между домами 38 по Московскому шоссе и 95 по улице Ленсовета, на красной линии Звездной улицы. Прежде там был сквер. Проектом планировки, утвержденным в июне 2016 года, в нем отвели место под «коммерческий объект».


В конце ноября ООО «Невская логистика» (связано с ООО «ТД „Интерторг“», владельцем сетей «Народная 7Я семья» и Spar) получило разрешение на строительство там административного здания. За два года объект должен быть готов.


В Славянке фирма «Невская логистика» строит торговый центр Spar на углу Полоцкой улицы и Колпинского шоссе.




{full-story limit="10000"}
Цитирование статьи, картинки - фото скриншот - Rambler News Service.
Иллюстрация к статье - Яндекс. Картинки.
Есть вопросы. Напишите нам.
Общие правила  поведения на сайте.
Ctrl
Enter
Заметили ошЫбку?
Выделите текст и нажмите Ctrl+Enter
Мы в
Комментарии
Минимальная длина комментария - 50 знаков. комментарии модерируются
Комментариев еще нет. Вы можете стать первым!

Смотрите также
интересные публикации
       
Новости рынка недвижимости
Технологии строительства.