В Колпине начинается строительство первого дома в рамках реновации - «Свежие новости строительства»
В городе Колпино начинается строительство первого жилого дома в рамках реновации 10-го квартала. Он вырастет на месте снесенных зданий на углу улиц Губина и Павловской.
Прежде на месте стройплощадки стояли четыре двухэтажных дома сталинской архитектуры. В начале нынешнего года по заказу ООО «СПб реновация», которое запланировало реконструкцию квартала, они были снесены. Подрядчиком выступало ООО «Демонтажстройинжиниринг» (группа «Крашмаш»). В ходе работ рабочие нашли минометную мину.
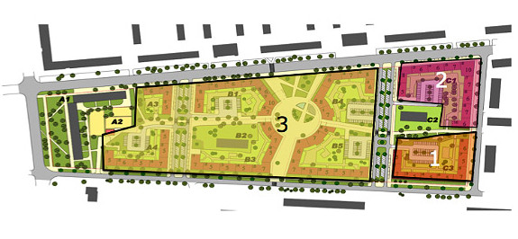
На днях «СПб реновация» получила разрешение на строительство жилого дома на расчищенном месте (на схеме он обозначен под цифрой 1). Он будет состоять из восьми секций высотой от пяти до девяти этажей. Внутри будут созданы 219 квартир общей площадью 10,8 тыс. кв. метров. В пристройке девелопер расположит паркинг на 101 место.
Проект нового дома был разработан ООО «Европроект групп», при этом сами девелоперы называют автором концепции архитектора Магнуса Монсона. Генподрядчика «СПб реновация» еще не выбрала.
Ввести дом в эксплуатацию, согласно разрешению на строительство, планируется в августе 2015 года. Но в компании «Карповке» сообщили, что квартиры будут готовы в первом квартале 2015-го.
Помимо колпинского дома, «СПб реновация» сейчас ведет строительство на трех площадках в Сосновой Поляне. Там, правда, работы идет как уплотнительная застройка — на свободных от застройки пятнах.




И будьте в курсе первыми!