Тоннель на Синопской набережной планируют открыть в 2014 году - «Свежие новости строительства»
На Синопской набережной в 2014 году будут построены тоннель и ряд других объектов транспортной инфраструктуры. Это несмотря на задержку, связанную с нерестом рыб.
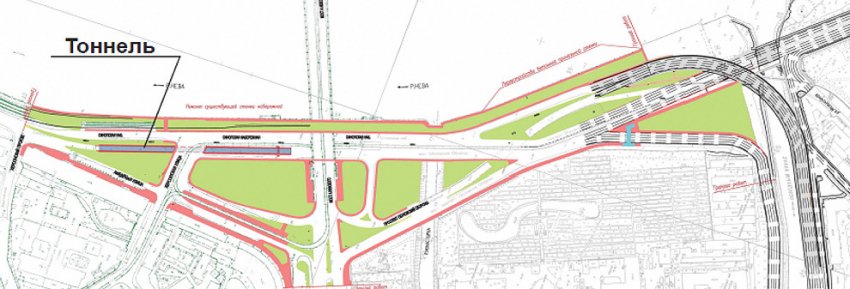
Комплексная реконструкция Синопской набережной началась в декабре прошлого года. Победителем тендера тогда стало московское ООО «НПО „Космос“». Компания выиграла контракт на 1,5 млрд рублей.
По проекту, разработанному ГУП «Ленгипроинжпроект» и ООО «Инжтехнология», реконструкция включает в себя строительство тоннеля на пересечении Синопской набережной и Херсонской улицы, капитальный ремонт проезжей части набережной от проспекта Обуховской Обороны до Херсонского проезда, которая затронет также и проходящие по набережной трамвайные пути. Также запланирован и ремонт стенки набережной.
По требованию Водоканала будет произведено переустройство старого водовода под набережной. Как рассказали сегодня «Карповке» в комитете по развитию транспортной инфраструктуры, это было решено сделать в рамках реконструкции, чтобы потом не портить свежеуложенный асфальт и вновь не перекрывать движение.
Над проездом, идущим вдоль ограды Никольского кладбища Александро-Невской лавры от проспекта Обуховской Обороны к набережной Обводного канала, будет сооружен надземный пешеходный переход.
Там же произойдет и подключение к следующему объекту — южной набережной Обводного канала, которая строится от Глухоозерского шоссе до проспекта Обуховской Обороны с мостом через ковш Обводного канала. Сейчас ОАО «Мостостроительный трест № 6» возводит там полукруглый четырехполосный путепровод, который позволит поворачивать с южной набережной канала на Синопскую набережную.
На первом этапе реконструкции Синопской набережной была осуществлена подготовка территорий, после которой застройщик должен был выйти на работы. Но КРТИ столкнулся с неожиданным препятствием, помешавшим начать работы вовремя: природоохранная прокуратура не разрешила выходить на работы в период с 20 апреля по 20 июня из-за нереста рыб. В КРТИ уверяют, что теперь работы будут вестись в ускоренном темпе, дабы наверстать упущенные месяцы. По плану, реконструкцию планируют завершить во второй половине 2014 года.
К слову, с проблемой нереста рыб дорожники сталкиваются не первый раз. Три года назад при строительстве новой дороги в составе развязки под Литейным мостом природоохранная прокуратура возбудила административное дело против подрядчика ЗАО «Пилон» из-за того, что работы в акватории Невы начались в период нереста, но никакого согласования с Федеральным агентством по рыболовству не было.

И будьте в курсе первыми!